Процедура: 21000005000000022216

Наименование процедуры

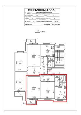
Продажа имущества, находящегося в хозяйственном ведении Государственного унитарного предприятия города Москвы «Центр управления городским имуществом», расположенного по адресу: г. Москва, ул. Новопеределкинская, д. 12, корп. 1, кв. 270, общей площадью 53,9 кв. м (кадастровый номер 77:07:0015008:8305)

Организатор торгов

ДЕПАРТАМЕНТ ГОРОДА МОСКВЫ ПО КОНКУРЕНТНОЙ ПОЛИТИКЕ (ИНН 7704515009)

ФИО

- -

Телефон

+7 499 652 60 25

E-mail

mostender@mos.ru

Способ проведения

Аукцион в электронной форме

Торговая секция

Имущественные торги (178-ФЗ), dev-178fz.roseltorg.ru

Теги процедуры
Справочная информация по имущественным торгам г. Москвы

Особенности проведения популярных торгов

Информация на Инвестиционном портале

Дополнительная информация о процедуре

Лоты

Лот 1
Прием заявок

Продажа имущества, находящегося в хозяйственном ведении Государственного унитарного предприятия города Москвы «Центр управления городским имуществом», расположенного по адресу: г. Москва, ул. Новопеределкинская, д. 12, корп. 1, кв. 270, общей площадью 53,9 кв. м (кадастровый номер 77:07:0015008:8305)

11 332 000,00

Обеспечение заявки:

566 600,00 (5%)

Плата за участие:

Участие бесплатное

Этапы

Публикация извещения

22.08.24 20:00:00 (МСК)

Дата и время окончания приёма заявок

до 24.09.24 15:00:00 (МСК)

Рассмотрение заявок

до 27.09.24 02:59:59 (МСК)

Проведение торгов

30.09.24 10:00:00 (МСК)

Продавец

Название организации

ГОСУДАРСТВЕННОЕ УНИТАРНОЕ ПРЕДПРИЯТИЕ ГОРОДА МОСКВЫ "ЦЕНТР УПРАВЛЕНИЯ ГОРОДСКИМ ИМУЩЕСТВОМ" (ИНН 7705059380)

Информация об имуществе

Категория

Квартиры

Этапы процедуры

Публикация извещения

22.08.24 20:00:00

Прием заявок

Лот 1

Работа комиссии

Процедура завершена